Hanamachi渋谷では、入居者皆様のシェアハウスライフが素晴らしいものになるよう設備・サービスの提供を心がけています。
女性専用だからこそ、安心安全をきっちり考慮して警備保障会社、複製の難しいディンプルシリンダー錠を採用。
女性による清掃サービス・宅配BOX・差込めばすぐに使えるインターネット(使い放題)‼
充実した設備は、まさに自分らしく働く素敵な女性にピッタリです✨
★ポイント★
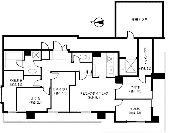
「オートロック付マンション最上階」「居室・リビング日当たり良好」「ベランダ付個室有」
「マンション1階に運営会社(女性スタッフ対応)👩」
近所にコンビニ・スーパーやカフェ・ATMや郵便局があり暮らしも便利!
共用設備 ギャラリー
| マンションの設備 | |||
|---|---|---|---|
| ・24時間ゴミ出しOKの敷地内ゴミ置き場 ・マンションエントランスはオートロック完備 ・1階エントランスに管理人室あり ・宅配ボックスあり |
・マンション内駐輪場 ・エレベーター ・警備会社によるセキュリティ |
||
![]() ≪1階エレベーターホール≫ |
![]() ≪宅配BOX≫ |
![]() ≪駐輪場≫ |
![]() ≪敷地内ごみ置き場≫ 24時間ゴミ出しOK。 |
| はなまち渋谷 共用部 | |||
|---|---|---|---|
![]() マンション最上階の |
![]() 玄関は白で統一。 |
![]() モニター付きインターホンで来客も顔が見えるので安心です。 |
![]() 大容量のシューズボックス。掃除機は自由に使えます。 |
![]() 郵便物は各部屋ごとに仕分けます。 |
![]() 広々とした専用テラスがあります。ハーブを育てたり自由に使っていただけます。 |
![]() 廊下は落ち着いた雰囲気。壁掛けの絵が女性らしさを演出しています。 |
![]() リビングの壁紙がアクセントになっています。 2020年11月にリニューアル済みです。 |
![]() リビングの窓は二重窓なので、防音対策にも。大きな窓で解放感があります。 |
![]() ペントハウスならではのリビングダイニングの天井は高さ3mのR型をしています。 |
![]() リビングのペンダントライト。 リモコン操作で明るさ調節可能です。 |
![]() トイレはもちろん温水便座。手洗い場もございます。 |
![]() ファミリー用のシステムキッチンです。 |
![]() レンジ、ケトル、炊飯器2台、トースターをご用意しています。 |
![]() 冷蔵庫も大容量! ★2021年7月に新調★ |
![]() 共用で使える食器をご用意しています。 |
![]() 料理好きな方も満足な3つ口ガスコンロ。魚焼きグリルもございます。フライパン、鍋などもご用意しています。 |
![]() 独立洗面所は、シャワーヘッド!鏡も大きく、ヘアメイクなどで大活躍。 |
![]() 浴槽は足を伸ばせる大きさです。 |
![]() 洗濯機と洗濯かごをご用意しています。 |
| 館内管理 | 巡回(週1回館内訪問) |
|---|---|
| シェアハウス内清掃 | 週2回リビングダイニング、キッチン、浴室、トイレなどの共用部の掃除を行います。 |
| 消耗品交換 | 電球、トイレットペーパーなど消耗品交換を行います。 |
| その他 | ※独立開業をお考えの方には起業、税務相談なども対応しております。 |
| マンション建物管理 | 管理人巡回(週4回作業)午後8時からマンション内共用部の掃除と管理を行っています。 |
|---|---|
| セキュリティー | マンション管理会社、警備会社が24時間対応いたします。 |
| 起業・開業相談 | 独立開業を夢見ている(目標)方を対象に専門家との無料相談が可能です。 |
|---|---|
| 税務・財務相談 | 税理士による経理、税務関係についての相談も承っております。 |
| 労務相談 | 社会保険労務士による労務、社会保険、年金関係についての相談も可能です。 |
料金・条件
| 物件概要 | |||||
|---|---|---|---|---|---|
| 名称:Hanamachi渋谷 シェアハウス 住所:東京都渋谷区円山町6番 渋谷アムフラット701 Hanamachi渋谷 構造・規模:鉄筋コンクリート造 地上7階建 築年:平成11年3月竣工 交通:JR山手線「渋谷駅」徒歩7分 各私鉄線「渋谷駅」徒歩7分 京王井の頭線「神泉駅」徒歩2分 |
![]() |
||||
入居条件
男性NG 女性OK
入居者審査が有ります。身分証明書、緊急連絡先が必要となります。
外国籍の方の場合、日本語の読書き、話す事が可能な方。就労ビザ・留学ビザを保有している方。
日本在住の日本語が話せる緊急連絡先をお持ちの方に限ります。
入居時用意頂くもの
入居時これだけあればOK
歯ブラシ、歯磨き粉、シャンプー類、ドライヤ、洗濯洗剤、ベッドシーツ類、かけ布団、枕
タオル類、バスマット、スリッパこちらをご入居者様個人でご用意頂いております。
シェアハウスの良い所
メリット紹介
Wi-Fi・水道光熱費(沢山使っても共益費に含まれているので安心)
全室鍵付き🔑・備品補充(日用品のストック欠かしません)
運営会社1階(1階に運営会社があるので、何でもご相談下さい!平日9:00~18:00)
女性には安心の大通り(道玄坂)から徒歩1分。夜中でも人通り多く明るいです。
契約条件
| 賃料 | 月額65,000円~月額85,000円 |
|---|---|
| 共益費 | 月額15,000円(電気、ガス、水道、ネット費用他含む) |
| 総部屋数 | 5部屋 |
| 契約期間 | 3ヶ月間以上 [ 定期賃貸借契約(再契約可)] |
| 保証金 | 30,000円(解約時15,000円クリーニング代として償却) |
| 必要書類 | 身分証明書、緊急連絡先、収入証明書
外国籍の方:就労ビザ・留学ビザ |
| 契約事務手数料 | 更新時:5,500円(1年毎更新) |
| 火災保険料(1年間) | 約3,000円 |

























